Miti Studio 1-Bedroom
Price range: $ 250.00 through $ 300.00
Built around a central wooden core and large glazed openings, the Miti Studio floods the interior with natural light while promoting cross-ventilation — reducing the need for AC. The design features exposed timber beams, stone-clad walls, and a green roof option, making it ideal for cooler highland areas or forest-adjacent plots
Floors
Bedrooms
Bathrooms
m
m
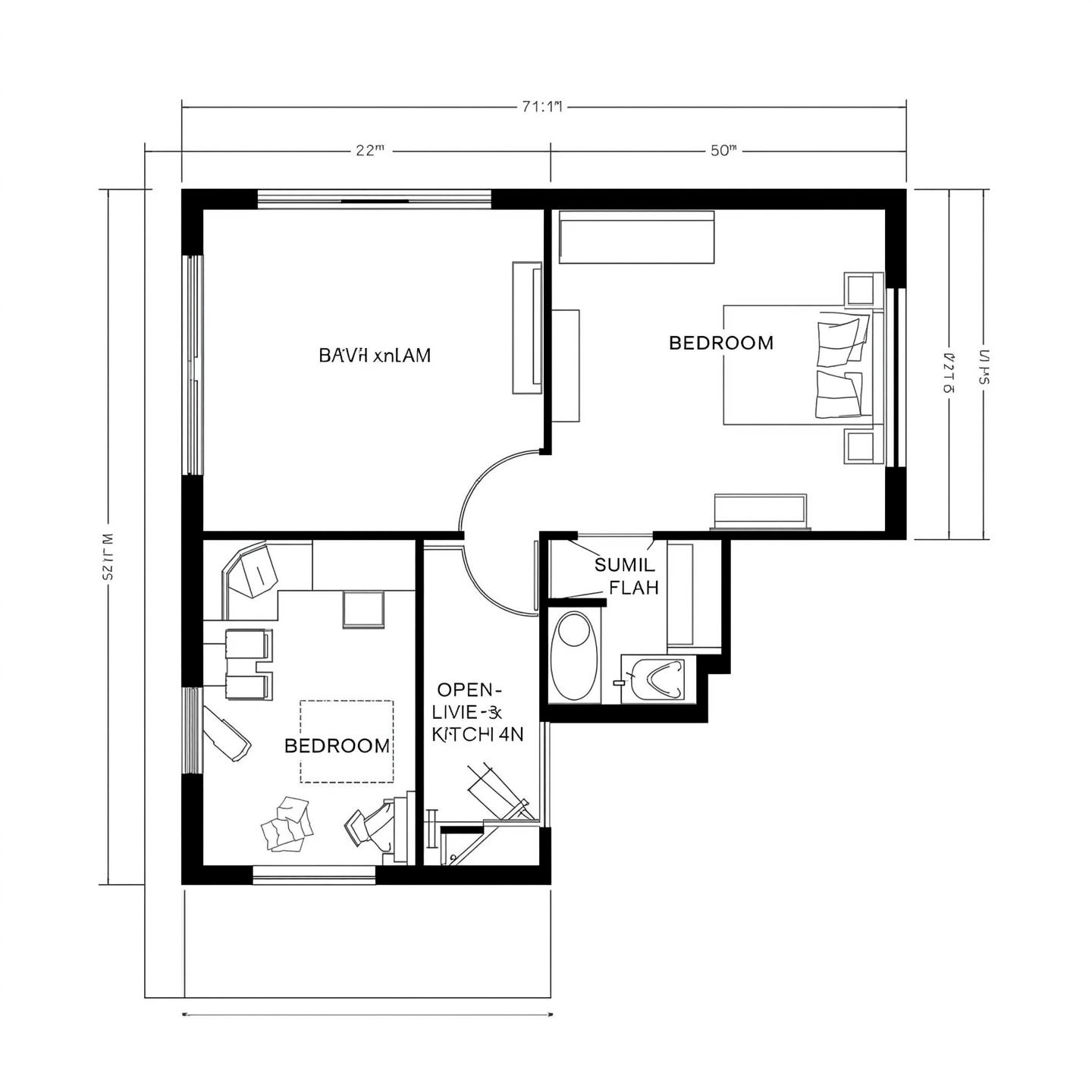
Miti Studio – a charming 1-bedroom house that’s all about style and comfort! Spanning around 600 sq. ft., this cozy retreat is expertly designed to make the most of every inch, blending modern living with a warm, inviting atmosphere.
Step inside and you’ll find a well-thought-out bedroom area that comes with its own private en-suite bathroom, perfect for creating your own little sanctuary. The open floor plan design in the living and dining space is bright and cheerful, thanks to those big windows that flood the area with natural light, giving it an airy feel that just feels like home.
The kitchen, though compact, is super practical, featuring plenty of counter space and storage for all your culinary adventures. Plus, there’s a delightful breakfast nook that’s just right for enjoying your morning coffee, whether you’re flying solo or sharing a meal with a partner.
You’ll also appreciate the clever storage solutions and a welcoming entrance that make this space feel even more inviting. Miti Studio is a fantastic option for first-time homeowners, a cozy vacation getaway, or a rental property, offering a stylish and efficient living experience. With its contemporary design, functional layout, and generous sunlight, it’s a place where you can truly feel at home!





Reviews
There are no reviews yet.